29 5750 Dene Way
Calgary, AB T3T 0E6
Townhome
1808 ft ²
2beds
3
baths
Facts & features
Stories:
3-story
Parking/Garage:
1
Feel Right at Home
Explore 3D Walkthrough Tours of this Home
All the Right Spaces
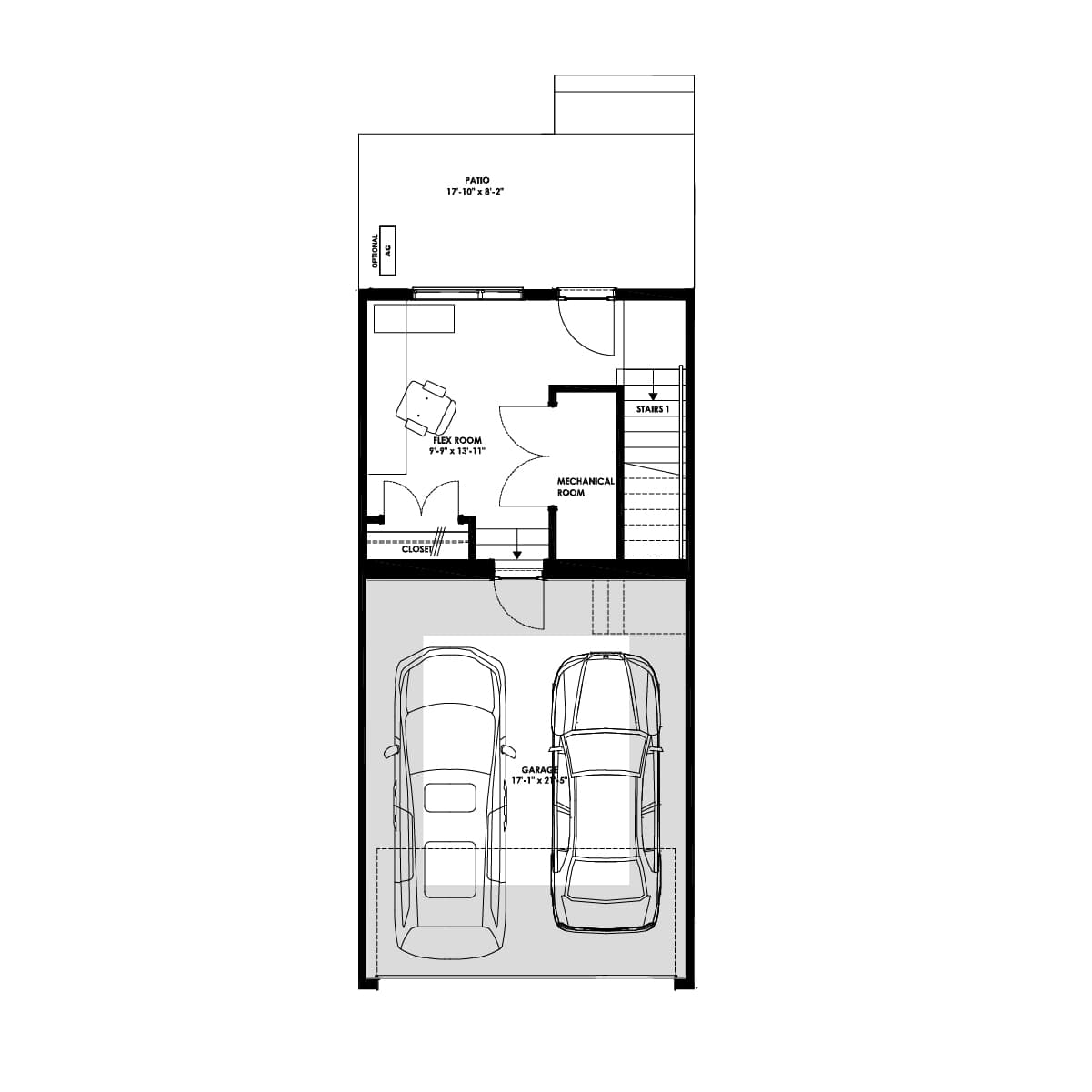
Floor Plan

Meet your new neighborhood
Area & Availability Map
Explore the community
Get to know Rhythm at Taza Park
Brookfield Residential
Similar Homes
Brookfield Residential













