1 OF 12
Gaillardia Walkout Plan
Townhome
1,728 ft ²
3beds
3
baths
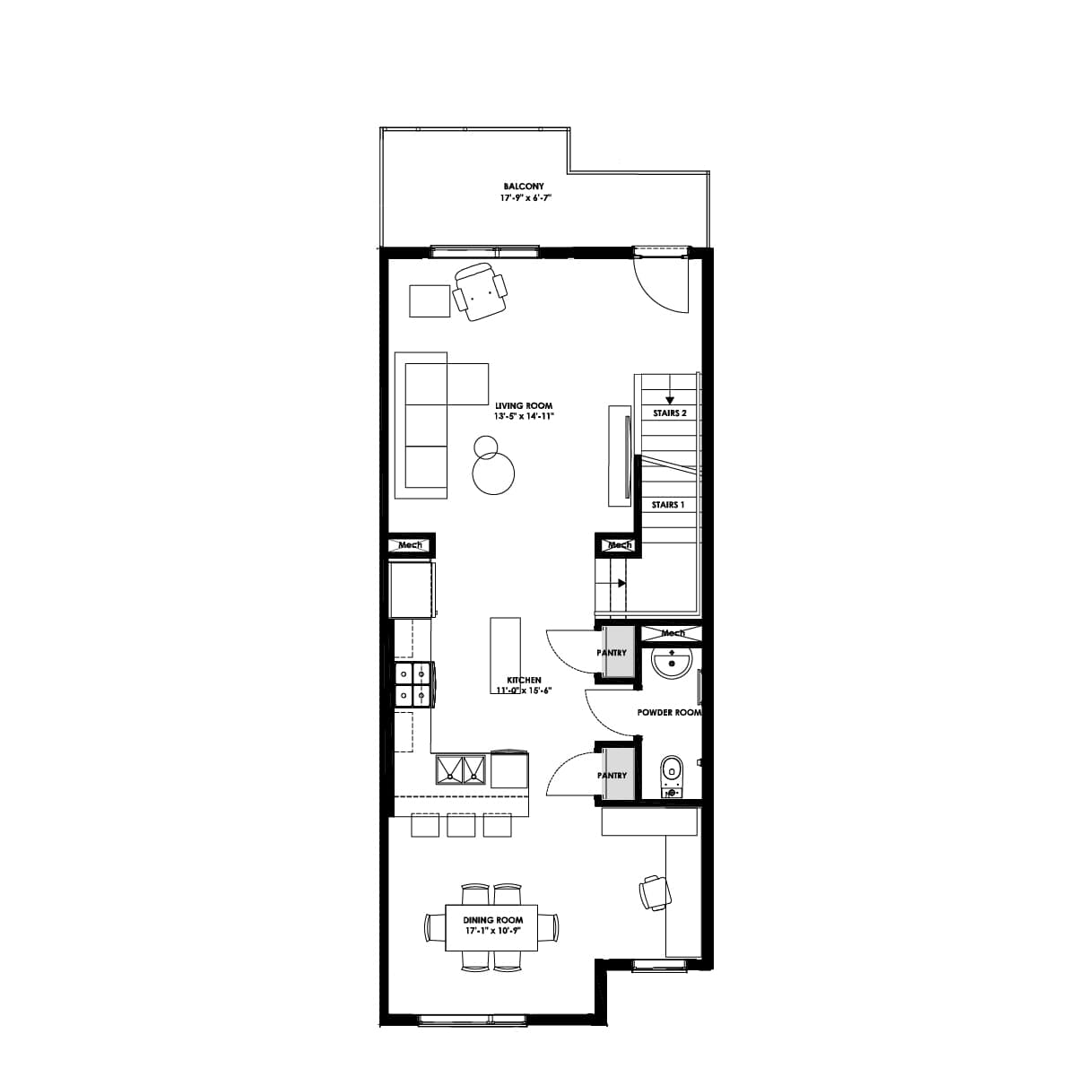
The Gaillardia offers 1,728 sq. ft. of thoughtfully designed space across three levels, blending open-concept living with versatile design. This three-bedroom, three-bathroom home is part of Rhythm at Taza Park, an energized, nature-connected community located just minutes from downtown Calgary.
On the entry level, a private garage and welcoming foyer set the stage for a functional and stylish interior. The main floor opens up to a bright and expansive living area, where the kitchen, dining, and living room flow together seamlessly. Optional upgrades like a gourmet kitchen layout and electric fireplace let you personalize your space.
Upstairs, three bedrooms offer room for family, guests, or flexible use, with an optional two-bedroom configuration available. The primary suite includes a private ensuite for added comfort. Thoughtful touches like upper-level laundry and walk-out patio options enhance day-to-day convenience.
On the entry level, a private garage and welcoming foyer set the stage for a functional and stylish interior. The main floor opens up to a bright and expansive living area, where the kitchen, dining, and living room flow together seamlessly. Optional upgrades like a gourmet kitchen layout and electric fireplace let you personalize your space.
Upstairs, three bedrooms offer room for family, guests, or flexible use, with an optional two-bedroom configuration available. The primary suite includes a private ensuite for added comfort. Thoughtful touches like upper-level laundry and walk-out patio options enhance day-to-day convenience.
The Gaillardia offers 1,728 sq. ft. of thoughtfully designed space across three levels, blending open-concept living with versatile design. This three-bedroom, three-bathroom home is part of Rhythm at Taza Park, an energized, nature-connected community located just minutes from downtown Calgary.
On the entry level, a private garage and welcoming foyer set the stage for a functional and stylish interior. The main floor opens up to a bright and expansive living area, where the kitchen, dining, and living room flow together seamlessly. Optional upgrades like a gourmet kitchen layout and electric fireplace let you personalize your space.
Upstairs, three bedrooms offer room for family, guests, or flexible use, with an optional two-bedroom configuration available. The primary suite includes a private ensuite for added comfort. Thoughtful touches like upper-level laundry and walk-out patio options enhance day-to-day convenience.Read More
On the entry level, a private garage and welcoming foyer set the stage for a functional and stylish interior. The main floor opens up to a bright and expansive living area, where the kitchen, dining, and living room flow together seamlessly. Optional upgrades like a gourmet kitchen layout and electric fireplace let you personalize your space.
Upstairs, three bedrooms offer room for family, guests, or flexible use, with an optional two-bedroom configuration available. The primary suite includes a private ensuite for added comfort. Thoughtful touches like upper-level laundry and walk-out patio options enhance day-to-day convenience.Read More
Facts & features
Stories:
3-story
Parking/Garage:
1
Feel Right at Home
Showhome 3D Walkthroughs
Floor Plan & ExteriorPersonalization OptionsGet a head start on your dream home with our interactive home visualizer - configure everything from the scructural options to selecting finishes.
Meet your new neighborhood












