2418 Whitewing Lane
Wendell, NC 27591
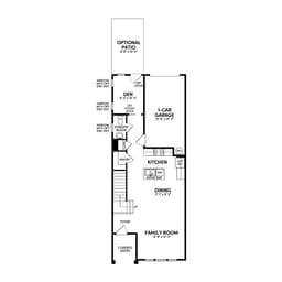
Get DirectionsThis Lennox townhome features 3 bedrooms, 2.5 bathrooms, a 1-car rear garage, and plenty of flexible living space on two levels. Upon entering through the covered entry, the foyer leads seamlessly into the open floor plan, where the family room and dining room effortlessly connect to the central kitchen. The kitchen features a large eating bar kitchen island and spacious pantry, Carrara Morro quartz countertops, white cabinets, and Matte Black pull down faucet. Towards the rear of the main level, a generously sized den awaits, providing an ideal space for a home office or versatile living.
Take the oak stairs with silver shade stain to the upper level, where a spacious primary suite awaits with additional windows, spacious en suite bath and walk in closet. The primary bathroom features Blanco Maple quartz countertops, upgraded lighting and white cabinets. Two secondary bedrooms, an additional full bathroom, and a conveniently located laundry room are also on the upper level.
Backing to open space for added privacy, this home is set within the vibrant Wendell Falls community featuring trails, parks, pools, and a growing Treelight Square. Convenient to shopping, dining, and everyday essentials—where lifestyle and location come together.
• Carrara Morro quartz countertops in the kitchen
• Backs to open space
• Primary suite with sitting room
This Lennox townhome features 3 bedrooms, 2.5 bathrooms, a 1-car rear garage, and plenty of flexible living space on two levels. Upon entering through the covered entry, the foyer leads seamlessly into the open floor plan, where the family room and dining room effortlessly connect to the central kitchen. The kitchen features a large eating bar kitchen island and spacious pantry, Carrara Morro quartz countertops, white cabinets, and Matte Black pull down faucet. Towards the rear of the main level, a generously sized den awaits, providing an ideal space for a home office or versatile living.
Take the oak stairs with silver shade stain to the upper level, where a spacious primary suite awaits with additional windows, spacious en suite bath and walk in closet. The primary bathroom features Blanco Maple quartz countertops, upgraded lighting and white cabinets. Two secondary bedrooms, an additional full bathroom, and a conveniently located laundry room are also on the upper level.
Backing to open space for added privacy, this home is set within the vibrant Wendell Falls community featuring trails, parks, pools, and a growing Treelight Square. Convenient to shopping, dining, and everyday essentials—where lifestyle and location come together.
• Carrara Morro quartz countertops in the kitchen
• Backs to open space
• Primary suite with sitting room
Facts & features
Stories:
2-story
Parking/Garage:
1
All the Right Spaces
Meet your new neighborhood


















