3375 Erlanger Bend NW
Edmonton, AB T6M 0T8
Get DirectionsSingle-Family
2224 ft ²
4beds
4
baths
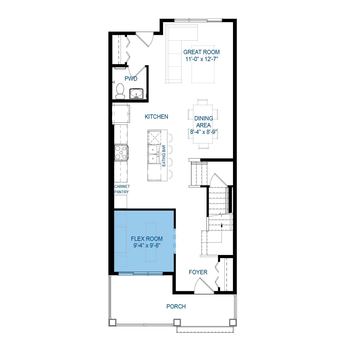
This completed home offers exceptional flexibility and style, featuring a full 1-bedroom legal suite with its own kitchen appliance package, full bathroom, and enclosed separate side entrance, ideal for extended family or rental income. The main level includes a versatile flex room and a gourmet kitchen with cabinet risers, pot and pan drawers, and built-in stainless steel appliances. Upstairs, you'll find a spacious bonus room and a generous primary bedroom, perfect for modern family living. Situated on a corner lot with extra windows, this home boasts curated interior finishes, prairie-style architecture, and a prime location within walking distance to Wedgewood Ravine and the future K–9 public school.
Home Features:
– Gourmet kitchen package: cabinet risers to the ceiling, pot and pan drawers, built-in stainless steel appliances
– Flex room on main floor
– Full legal suite with one bedroom, kitchen appliance package, full bathroom, and enclosed separate side entrance
– Upper floor bonus room
– Spacious primary bedroom
– Corner lot with additional windows
– Curated interior finishes
– Prairie-style architecture
– Walking distance to Wedgewood Ravine
– Steps away from future K–9 public school
PLEASE NOTE: Photos, Video and Virtual Tour are of a similar model and not fully representative of this home.
Home Features:
– Gourmet kitchen package: cabinet risers to the ceiling, pot and pan drawers, built-in stainless steel appliances
– Flex room on main floor
– Full legal suite with one bedroom, kitchen appliance package, full bathroom, and enclosed separate side entrance
– Upper floor bonus room
– Spacious primary bedroom
– Corner lot with additional windows
– Curated interior finishes
– Prairie-style architecture
– Walking distance to Wedgewood Ravine
– Steps away from future K–9 public school
PLEASE NOTE: Photos, Video and Virtual Tour are of a similar model and not fully representative of this home.
This completed home offers exceptional flexibility and style, featuring a full 1-bedroom legal suite with its own kitchen appliance package, full bathroom, and enclosed separate side entrance, ideal for extended family or rental income. The main level includes a versatile flex room and a gourmet kitchen with cabinet risers, pot and pan drawers, and built-in stainless steel appliances. Upstairs, you'll find a spacious bonus room and a generous primary bedroom, perfect for modern family living. Situated on a corner lot with extra windows, this home boasts curated interior finishes, prairie-style architecture, and a prime location within walking distance to Wedgewood Ravine and the future K–9 public school.
Home Features:
– Gourmet kitchen package: cabinet risers to the ceiling, pot and pan drawers, built-in stainless steel appliances
– Flex room on main floor
– Full legal suite with one bedroom, kitchen appliance package, full bathroom, and enclosed separate side entrance
– Upper floor bonus room
– Spacious primary bedroom
– Corner lot with additional windows
– Curated interior finishes
– Prairie-style architecture
– Walking distance to Wedgewood Ravine
– Steps away from future K–9 public school
PLEASE NOTE: Photos, Video and Virtual Tour are of a similar model and not fully representative of this home. Read More
Home Features:
– Gourmet kitchen package: cabinet risers to the ceiling, pot and pan drawers, built-in stainless steel appliances
– Flex room on main floor
– Full legal suite with one bedroom, kitchen appliance package, full bathroom, and enclosed separate side entrance
– Upper floor bonus room
– Spacious primary bedroom
– Corner lot with additional windows
– Curated interior finishes
– Prairie-style architecture
– Walking distance to Wedgewood Ravine
– Steps away from future K–9 public school
PLEASE NOTE: Photos, Video and Virtual Tour are of a similar model and not fully representative of this home. Read More
Facts & features
Lot size:
4246 ft ²
Stories:
2-story
All the Right Spaces
Floor Plan

Meet your new neighborhood
Area & Availability Map
Explore the community
Get to know Edgemont
Brookfield Residential
Similar Homes
Brookfield Residential














